Vitogo Parade, Lautoka +679 721 0657 Mon-Sat: 8am - 5pm
Follow us:
Autora
  • HOME
  • ABOUT US
    • ABOUT DESIGN
    • ABOUT BUILT
    • DIRECTOR
    • ASSISTANT DIRECTOR
  • OUR TEAM
    • MANAGEMENT TEAM
    • OPERATIONAL TEAM
    • OUR EVENTS
  • SERVICES
    • GRACE DESIGN
    • GRACE BUILT
  • GRACE PROJECTS
    • GRACE PLAN LAYOUT
    • GRACE DESIGN
    • GRACE BUILT & DESIGN
    • LANDSCAPING
  • CONTACT
Home | Projects | Project Single

Project Name

COMMERCIAL COMPLEX

  • Client Loloma Investment
  • Year completed 2020
  • Project Designer GRACE DESIGN
  • Call for a Budget +679 7210657

BROCHURES

Brochures.PDF
Brochures.DOC
Image
Image
Image
Image
Image
Image
Image
Image
Image
Image
Image
Image
PROJECT DESCRIPTION

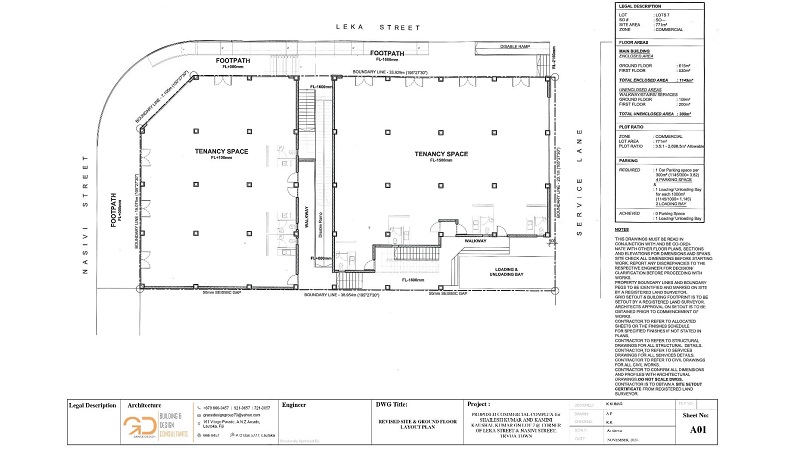
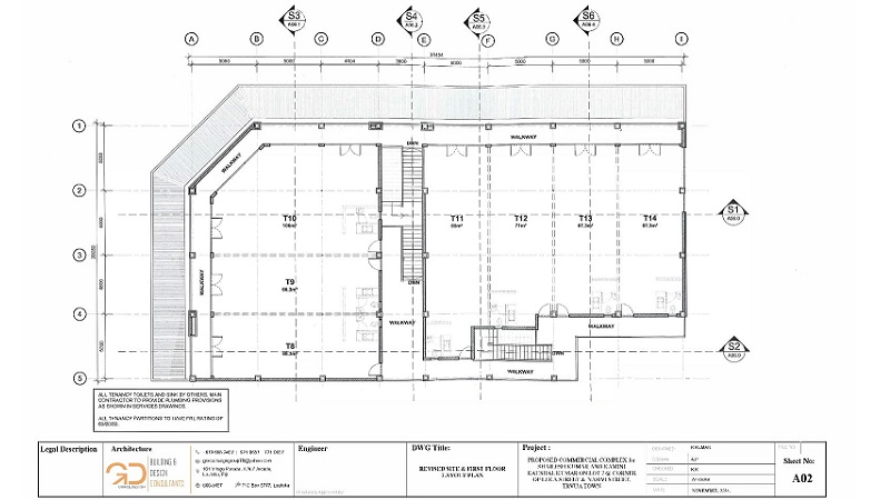
Tavua New Complex.
Our Client a die hard tavua Resident and a bussiness man Mr Salesh Kumar has invested in the heart of tavua town..providing a very mordern complex that will cater for retail shops,restura ts and possiably ideal for Banks,and Fully aircorn supermarket..or Government offices.Mr Salesh belives that Tavua has a potential to grow and are are home to the vast majority of the planet's land, water and other natural resources. Since much of our food is produced in rural areas, they play a key role in ensuring food security, especially in view of the increasing food demands that come with a growing population Tavua not only has farmers,but it also is home to many co-operate people while the complex is nearing finishing intrested parties to rent the complex are invited to send in intrest.. The opening of the KUMAR COMPLEX is anticipated to finish in Feb 2025.

From November 2013 to April 2014, EllisDon was awarded an additional Lump Sum contract for $5 million. This additional scope of work included a lab fit- up on the fourth level of the Krembil Discovery Centre.

RELATED PROJECTS

Image
OUR BUILDING DESIGN
VIEW MORE
Image
OUR BUILDING DESIGN
VIEW MORE
Image
OUR BUILDING DESIGN
VIEW MORE
Image
OUR BUILDING DESIGN
VIEW MORE
Image
OUR BUILDING DESIGN
VIEW MORE
Image
OUR BUILDING DESIGN
VIEW MORE

Image

Grace Design & Build is your trusted partner for bringing your dream project to life in Fiji.

  • Vitogo Parade, Lautoka, Fiji
  • CALL US : (+679) 721 0657
  • gracedesigngroup70@yahoo.com

OUR PROJECTS

  • Image

    GRACE DESIGN

    Turning visions into architectural reality.
  • Image

    GRACE BUILT & DESIGN

    Building with quality, precision, and trust.

TAGS

Building Smart House Costruction Villa Residential Interior Resort Commercial

INSTAGRAM PHOTOS

Image
Image
Image
Image
Image
Image
2025@ Website maintained by Grace Technology
  • HOME
  • ABOUT US
  • SERVICES
  • PROJECTS
  • PAGE
  • CONTACT