161 Vitogo Parade, Lautoka +679 721 0657 / 9210657 Mon-Sat: 8am - 5pm
Follow us:
Autora
  • HOME
  • ABOUT US
    • ABOUT DESIGN
    • ABOUT BUILT
    • DIRECTOR
    • ASSISTANT DIRECTOR
  • OUR TEAM
    • MANAGEMENT TEAM
    • OPERATIONAL TEAM
    • OUR EVENTS
  • SERVICES
    • GRACE DESIGN
    • GRACE BUILT
  • GRACE PROJECTS
    • GRACE PLAN LAYOUT
    • GRACE DESIGN
    • GRACE BUILT & DESIGN
    • LANDSCAPING
  • CONTACT
Home | Projects | Project Single

Project Name

RESIDENTIAL HOUSE

  • Client FRANCIS PESAMINO
  • Year completed 2023
  • Project Designer GRACE DESIGN
  • Main ContractorGRACE BUILT & DESIGN
  • Call for a Budget +679 7210657

BROCHURES

Brochures.PDF
Brochures.DOC
Image
Image
Image
Image
Image
Image
Image
Image
Image
Image
Image
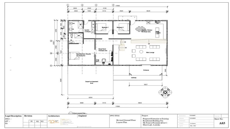
PROJECT DESCRIPTION

FRANCIS PESAMINO RESIDENCE MARAVU STREET, LAUTOKA, FIJI.

"We met Kunal through a property consultant - Aveet (First Pacific Investments Ltd) however we also knew our faith in Jesus Christ also played a role in meeting Kunal who is also a devout Christian been looking for a property for a long time.From Design Stage to approvals and entire bank inspection to full Construction KunalS team Grace Built & Design-Fiji Pte Ltd was a blessing to deal with..
When we purchased this property, it was really run down and basically not fit / safe to live in. At the same time, we met Kunal (Grace Design)thru recommendations and after a few meetings, we knew straight away that he was the right Designer and contractor for our job.
Kunal is a true professional, very detailed oriented, hardworking and very much honest in his dealings (something very rare with contractors in Fiji).
We could trust his advice from day 1 and this was a big help for us especially since we were also busy with our work commitments and could not be there most of the times to supervise the renovation works.
We will not hesitate to recommend him to anyone or business regarding construction related projects / design. Finally, we would also like to thank his hardworking team/contractors for the amazing work done and wish them the very best in the future.
God Bless you always!! - Kunal and the Grace Design Renovation Team" - F&A - Property Owners

RELATED PROJECTS

Image
COMPLETED PROJECT
VIEW MORE..
Image
COMPLETED PROJECT
VIEW MORE..
Image
COMPLETED PROJECT
VIEW MORE..
Image
COMPLETED PROJECT
VIEW MORE..
Image
COMPLETED PROJECT
VIEW MORE..
Image
COMPLETED PROJECT
VIEW MORE..

Image

Grace Design & Build is your trusted partner for bringing your dream project to life in Fiji.

  • Vitogo Parade, Lautoka, Fiji
  • CALL US : (+679) 721 0657
  • gracedesigngroup70@yahoo.com

OUR PROJECTS

  • Image

    GRACE DESIGN

    Turning visions into architectural reality.
  • Image

    GRACE BUILT & DESIGN

    Building with quality, precision, and trust.

TAGS

Building Smart House Costruction Villa Residential Interior Resort Commercial

INSTAGRAM PHOTOS

Image
Image
Image
Image
Image
Image
2025@ Website maintained by Grace Technology
  • HOME
  • ABOUT US
  • SERVICES
  • PROJECTS
  • PAGE
  • CONTACT